掌握顧客需求之品質機能展開介紹
- 撰文者:
- 2016/01/21 瀏覽數:8407
全面品質經營的精神「滿足顧客需求」可分成三個步驟來達成,第一步驟是決定誰是接受我們的產品或服務的顧客?第二步驟是這些顧客對我們的產品或服務有什麼需求與期望?第三步驟是採用什麼方法來滿足這些顧客對我們的產品或服務的需求與期望?品質機能展開即針對第二步驟的顧客需求與期望的尋找、挖掘、確認加以探討。
顧客的聲音 = 顧客的需求?你同意嗎?
例如:可用手撕開的封箱膠帶,顧客的聲音是它厚度不夠厚,我們將厚度加厚就可以滿足顧客的需求了嗎?不一定。為什麼不一定?顧客說的話我已經聽到且依據他的建議改變了膠帶的厚度,為什麼說不一定滿足了顧客的需求?原因何在?
顧客的聲音不一定等於顧客的需求,因為他自以為已經表達清楚他的需要了,但是他說出來的話真的是他所想要的嗎?以上述封箱膠帶之例,顧客要的不是膠帶的厚度,顧客真正需要的是膠帶不會在封箱後搬運過程中斷裂、脫落,但他以為膠帶厚一點即可,這是錯誤的想法,所以我們在聽到「顧客的聲音」時必須再仔細思考:他為什麼會說這些話?他的真正需求是什麼?如此才能真正掌握到顧客的需求。
品質機能展開(Quality Function Deployment, QFD)是一個系統化的過程,能有效的幫助企業快速地了解顧客的需求並整合顧客的需求至企業的產品或服務之中。想要在今日全球市場成功地超越競爭者贏得勝利,如何滿足顧客的需求(說出來的/說不出來的;現在的/未來的)是所有企業都必須要做到的重要事情。而品質機能展開是被一些以顧客導向獲致成功的世界知名企業所常使用的方法。
品質機能展開最早是日本石橋輪胎在1966年所應用,1969年赤尾洋二教授整理相關資料後正式稱為品質機能展開,其後神戶造船、豐田汽車…等企業亦相繼引進使用而有極佳效果。由於效果卓著,美國福特汽車於1983年引進,並推廣至其供應商。荷蘭飛利浦公司亦用於其產品開發工作之中。 1988年中國生產力中心在執行經濟部工業局之「全面提高產品品質計畫」時,全力引進品質機能展開此項技術並擴散至各界,如今在各個領域皆有不少人在運用此項技術。
品質機能展開是一種系統化的技術方法,從掌握顧客需求,轉換成可具體衡量顧客需求的代用特性,以此來訂定產品或服務設計品質的標準,然後再將設計品質有系統的展開到各個零組件或服務項目的品質,以及製造工程中各要素或服務過程各要素的作業條件上,使產品或服務在事前就完成品質保證,符合顧客需求。
因此應用品質機能展開的重要效益如下述:
- 分析及蓄積市場的品質情報
- 有明確依據來決定設計品質
- 將設計構想確實傳達到製造
- 減少產品或服務初期品質問題
- 減少設計變更次數以縮短產品或服務的開發時間
- 累積專業技術知識
- 新進人員的訓練更容易
- 經由系統化的運作模式以建立完善的研發品質保證系統
- 確保從設計到生產出來的產品或服務能符合顧客需求,確實提高顧客滿意程度

圖1 品質機能展開進行方式
過去在進行新產品開發時就好像在進行障礙賽跑一樣(圖1),前一單位做完他的工作要交給下一個單位時,往往會花很多時間在爭執,前一個單位什麼沒做好,下一個單位為何要接手,爭來爭去浪費了很多時間;或者,各在本位上設想該如何做,而沒有考慮到顧客的需求是什麼,結果是做出來的東西完全不符合顧客的想法或需要。
品質機能展開是希望以團隊的方式開發新產品或新服務,一開始就大家一起談清楚顧客的需求及各單位間的分工與要求然後分開同時執行各自的工作,因為已經事先談清楚了,所以做出來的結果不會互不相關,由於可同步進行工作不必等待別人,因此新產品開發時間可大幅縮短。
除了赤尾洋二教授發展出來之系統(圖2)外,福原證也發展出來四階段系統(圖3),美國供應商協會(American Suppliers Institute, ASI)當初從日本引進品質機能展開時即是以此系統為主。而第一本英文版的品質機能展開著作由Bob King於1987年提出,書中發表了矩陣關係系統(Matrix of Matrices),此系統不如前述兩個系統普遍,故不在此贅述。
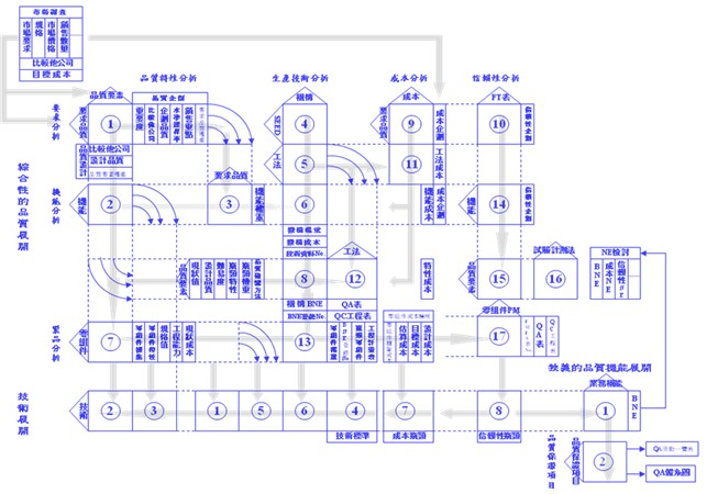
1988年中國生產力中心引進品質機能展開時,曾經因應臺灣產業之特性,以赤尾洋二之系統為本修訂了一套系統(圖4)在臺灣推展,此即作者在協助業者導入品質機能展開時所用之方法。

圖2 赤尾洋二的品質機能展開系統(修訂版)

圖3 福原證之四階段系統

圖4 中國生產力中心QFD應用系統
依中國生產力中心QFD應用系統展開大分為以下6個階段,但是,因應產品之差異仍需做細部調整。
- 商品企劃
- 品質展開〔品質屋〕
- 技術展開
- 次系統/零組件展開
- 製程展開
- 可靠度展開→此即圖4中之QA網I, II, III
本篇文章目的是先讓各位讀者對QFD有一個初步認識,後續將針對其中重點撰寫系列文章並佐以案例進行詳細說明。品質機能展開除了用在製造業新產品開發以外,還可以運用在服務業及其他不同的領域(例:方針管理、流程管理…等)。在TS-16949、ISO-9001及六標準差內品質機能展開也是其中一項工具。
由前所述,當對QFD的整體運作模式瞭解後,可將QFD用在工作與工作間、文件與文件間關聯性之串接,如:ISO條文→權責部門→相關程序書或ISO條文→相關程序書→權責部門。
企業內訓服務諮詢
引領前瞻學習成長文化、推動創新知識價值方案,是CPC的使命也是我們永遠的承諾。一站式的企業內訓服務:滿足企業委訓需求,量身規劃打造專屬性課程並提供完備的委訓服務。
猜你喜歡
服務業管理者對於服務品質的要求多以某集團服務模式為標竿,什麼是企業的服務品質?服務品質是創造價值與顧客滿意的關鍵。如何讓消費者於消費過程對企業感到專業性、值得信賴及與滿意,是企業於未來展店計畫所必須設定的目標之一。
服務藍圖是一張以正確描繪服務系統的圖案或地圖,猶如工廠的作業流程圖,可用來檢視服務產出過程。在服務創新過程中,應該讓來自不同專業人員間相互了解彼此的語言與工作,轉譯不同層次、不同觀點、不同措辭的語言,研究成果才能對服務使用者、服務設計者與服務鏈中各級人員產生可共同理解的意涵。因此,透過服務藍圖的建立,將使用者導向之創新成果概念化,並描繪終端使用者之使用情境,同時釐清背後的系統與技術,作為各部門對未來產品願景的共通溝通語言。
品質機能展開(Quality Function Deployment, QFD)是一個系統化的過程,能有效的幫助企業快速地了解顧客的需求並整合顧客的需求至企業的產品或服務之中。
以台灣中小型製造業來說,釐清客戶的需求,開發新的產品,是件頭痛的事。如何使業務與研發等相關工程人員,有效轉換客戶的聲音(VOC, Voice of Customer),成為廠內人員理解的語言,就是首要之務。此時,若能導入品質機能展開技術,使企業從產品企劃階段開始時,就能接受到客戶的聲音,由客戶要求的品質項目,轉化為工廠內可以操作的品質要素。透過這種方式,更能明確地掌握市場需求,降低產品設計修改,除了可以加速開發流程之外,更能提升廠內的溝通效能。
品質展開表的6個步驟將商品企劃書之欲開發之新產品規格具體化,從顧客之聲音轉化成其真實需求,並將抽象之顧客需求轉換成具體可達到之產品設計規格。其間並考慮自己與競爭者間之強弱之處進行設計改善。
文書檔案E化管理技巧班 - Gino老師
上課時間 2026/11/06 ~ 2026/11/06
CP管制計畫& PPAP零組件核准程序 - 第二梯
上課時間 2026/04/10 ~ 2026/04/10
AI 高效率職場賦能:從指令到自動化 - 自備筆電
上課時間 2026/04/10 ~ 2026/04/10
Excel 必修實戰 - 系統學習達人班 - 紮實核心能力、精通職場實務技能班 - 請攜帶筆電上課
上課時間 2026/08/20 ~ 2026/08/21
企業經營之法律風險管理
上課時間 2026/04/22 ~ 2026/04/22
供應商開發與管理完全指南
上課時間 2026/09/02 ~ 2026/09/02
增強財務人員在AI大數據趨勢下應有的認知思維與應對 - 活化財務人員思維的課程
上課時間 2026/08/13 ~ 2026/08/13
急救人員安全衛生在職教育訓練班(南科班) - 下午班 - 請上傳原始證書
上課時間 2026/04/08 ~ 2026/04/08
有害物作業主管在職教育訓練(有機/缺氧/特化/粉塵) - 【台南日間班】 - 【一次回訓一張證書】 - 請上傳原始證書 - 待課程確定後再行繳費
上課時間 2026/05/26 ~ 2026/05/26
CRM_顧客關係管理6個指標與客訴處理
上課時間 2026/10/19 ~ 2026/10/19